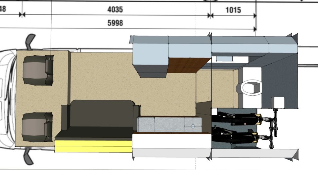
L’audience de Fourgonlesite.com ne s’arrête pas aux seules limites de l’Hexagone. Un de nos fidèles lecteurs, habitant au Portugal, nous partage le plan d’aménagement qu’il a conçu pour un fourgon de 5,99 m transportant deux vélos dans une soute verticale. Richement documentée et illustrée, cette description pourrait s’inscrire dans notre article sur les fourgons préférés des cyclistes.
Sortant un peu de notre rôle habituel, nous avons souhaité publier ce plan d’aménagement car il nous semble convaincant, inédit et suffisamment détaillé pour être réalisable sans grande modification technique. Comme le reconnaît humblement l’auteur de cette étude, José Paulo Amaral, tout n’est pas parfait : « Il manque encore l’emplacement des réservoirs et du chauffage ». Rien d’insurmontable pour un constructeur qui voudrait réellement s’y pencher…
Une étude en libre accès
Au-delà de la soute verticale, rarement exploitée (exception faite par Chausson/Challenger sur un camping-car avec le Bike-Up System), cet aménagement présente la singularité d’offrir un vrai cabinet de toilette séparé et une banquette convertible en un couchage double (140 x 186 cm). L’étude détaille précisément la mise en place qui s’appuie sur une structure articulée. Nous retiendrons aussi que :
• le chargement des vélos n’exige pas de démontage
• la cuisine libère un plan de travail généreux de 50 x 60 cm, ce qui – avouons-le – est plutôt rare
• l’on dispose d’une grande douche de 80 x 80 cm
• la banquette est profonde et confortable avec un dossier incliné
• la penderie + lingère de 40 x 60 cm s’étend sur toute la hauteur du véhicule.
En l’état actuel, ce concept n’offre que deux places route, mais pourrait se concevoir avec trois ou quatre places. Et pourquoi pas une rehausse de toit ou un toit relevable ? Ce qui permettrait d’élargir le nombre de places pour la nuit.

Magnanime, l’auteur de ce projet ne réclame rien, ni droits, ni honneur, et laisse à disposition de chacun les plans de son étude. Sa seule fierté serait de le voir un jour non plus sur un écran d’ordinateur mais en réalité.
À notre connaissance, aucun modèle ne ressemble aussi précisément à cette étude. Le plus proche serait le Cosmo de CS Reisemobile que nous avions essayé l’an denier.










































